Introducing 30 Philip Street where everything you need for a great carefree retirement or family home has been carefully thought about and created!
Set well back from the main street on a no through road, including uninterrupted fabulous views, this one is worth serious consideration.
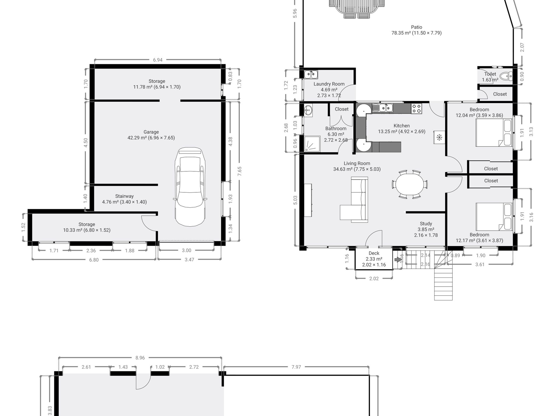
With a spacious open plan design and craftsman laid timber flooring, this home does deliver both opportunity and quality.
Two large bedrooms both with built in cupboards.
Complete with a renovated bathroom and kitchen.
The outdoor covered entertainment area offers both privacy and ample space for large family get togethers.
Underneath the home is a blank canvas providing a large secure storage area with separate rooms ready for a home based studio and gallery perhaps.
If you need more bedrooms this is the area to create them, the beautiful timber internal staircase is already in position.
Everyone needs a shed remember, well you will be delighted to find that Kerry thought through the construction of these buildings and access very well.
A three bay colour bond shed, plus a 6m x 6m skillion which can accommodate a large caravan and 4WD (even a hoist for your canoe). Simplistic access via a concrete driveway leading straight up beside the home.
Clean concrete flooring, electricity connection including a 15 amp outlet.
6.6kw Solar System with 20 Solar Panels.
Established gardens, lawn, rockeries and pathways gives this property an excellent finish.
Open House Inspections as per schedule or by appointment. I look forward to meeting you soon.
Features
- Air Conditioning
- Split-System Air Conditioning
- Balcony
- Courtyard
- Fully Fenced
- Outdoor Entertainment Area
- Secure Parking
- Shed
- Broadband Internet Available
- Built-in Wardrobes
- Floorboards
- Study
- Workshop
- Solar Panels
- Water Tank





























































